THE FOUNDATION

Six Proven Plans. Build on Your Lot.

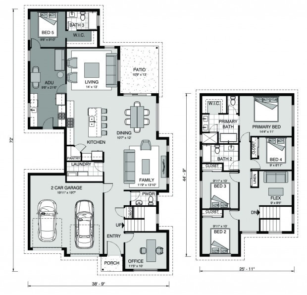
The Foundation Series

Six Proven Plans. Build on Your Lot.

We’ve carefully selected six exceptional floor plans to anchor the Canvas Foundation Series;

each designed for structural integrity, intelligent flow, and timeless livability.

  • Open-concept living.
  • Private primary retreats.
  • Functional family zones.
  • Seamless indoor-outdoor connection.

And for those planning ahead; selected plans offer the option to incorporate a Family Studio / ADU.

A fully integrated, self-contained living space designed for:

  • Aging parents
  • Adult children
  • Long-term guests
  • Rental income

With independent access and thoughtful separation, the Family Studio provides privacy without sacrificing proximity.

Engineered to adapt beautifully to acreage, waterfront, or private homesites, every Foundation plan is positioned to maximize light, views, and land potential.

Six strong starting points | Optional Family Studio flexibility | Built with strength at the core.

CHOOSE YOUR ARCHITECTURE

*The Canvas Transparency: Starting Investments represent the core architecture and our locked in Canvas Standard Luxury finishes. Because our team engineers every project to the specific environment, these figures do not include the land acquisition, specialized site preparation, or coastal impact requirement.